Op het moment ben ik nog druk in uitvoerende fases, na de afronding van een van de huidige projecten wordt deze zo spoedig mogelijk geüpload.
Schroom niet om af en toe te kijken hoe het er voor staat!
Opdracht vanuit BureauMT:
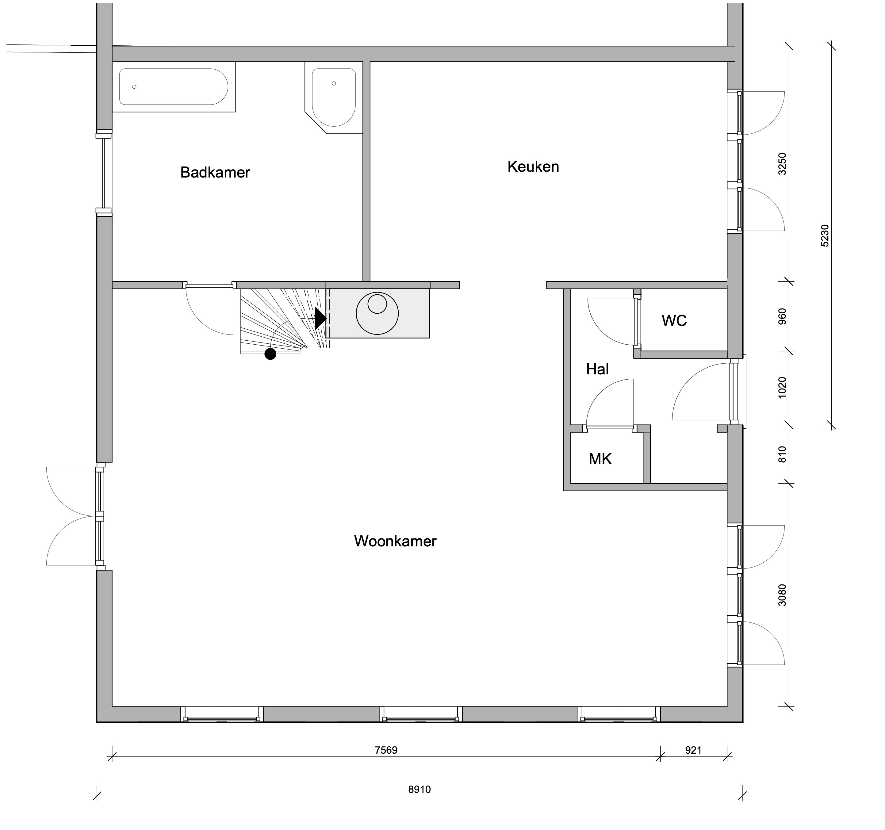
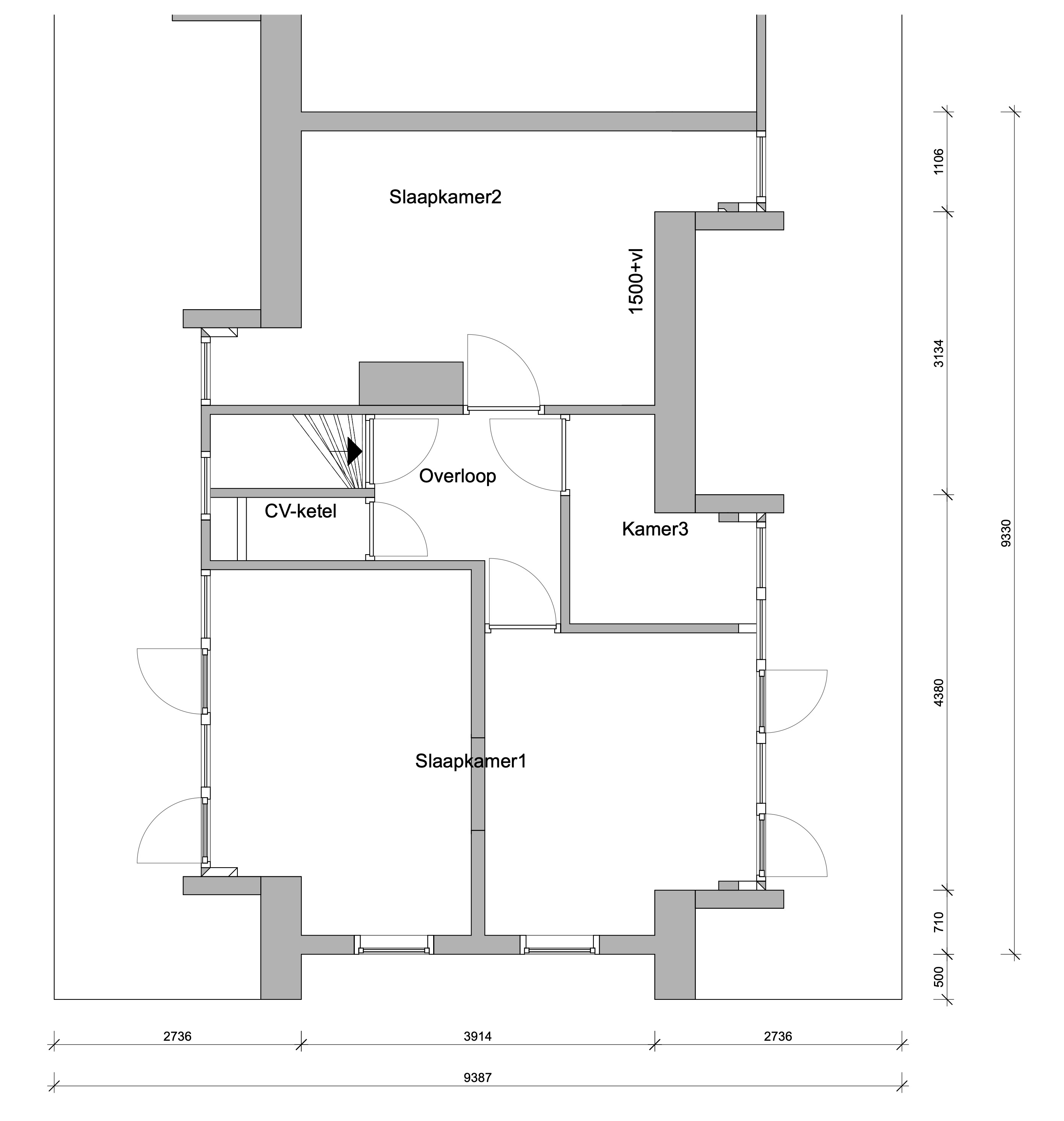
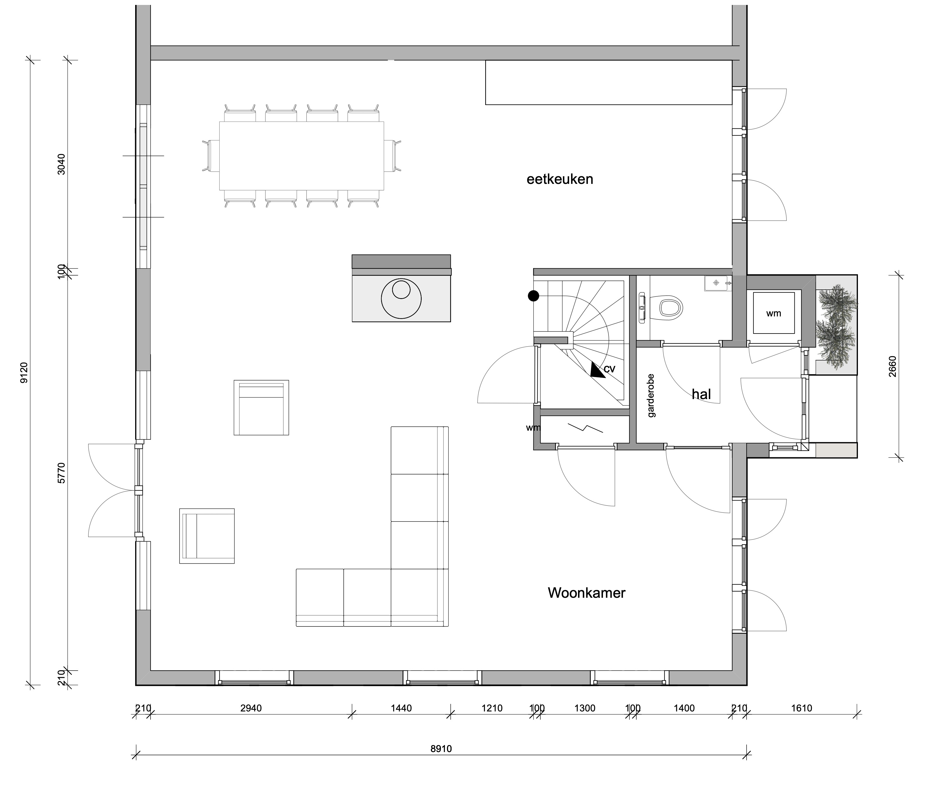
Hier zijn aanpassingen gedaan aan een bestaande boerderij zodat het meer in de huidige tijd past. Door middel van een herindeling en een kleine uitbreiding bij de entree is het weer fris en fruitig. Ook is de schuur verbouwd van garage tot slaap/studieruimte. Mijn taken bij dit project bestonden uit; de bestaande situatie inmeten, deze uittekenen en het ontwerp van de architect integreren in deze tekeningen. Vervolgens heb ik dit resultaat uitgewerkt in 3D impressies, om zo de presentatie compleet te maken.
Hieronder een voorbeeld van een bezonningsstudie.
Hierbij wordt er gekeken naar de schaduwwerking d.m.v. de stand van de zon. Wat het verschil mag zijn tussen de bestaande situatie en hoe het gaat uitwerken in de nieuwe situatie. Dit op steeds dezelfde tijdstippen van de dag en verschillende momenten in het jaar.
















